omakotitalo
Hunajatie 13, Kokkola
Ak: k, oh, mh, wc, kph, s, apuk, terassi | Yk: 4 mh, tv-h, kph, khh, p | Lämmin autotalli- ja varastorakennus
Moderni & hyväkuntoinen koti
Arvostetulla Halkokarin alueella, rauhallisella päättyvän kadun varrella sijaitsevalla uudehkolla asuinalueella, tyylikäs ja hyvin pidetty vuonna 2015 rakennettu kaksikerroksinen omakotitalo odottaa nyt uusia asukkaita. Sijainti on erinomainen - keskustaan on vain noin 3 km, lähimpään ruokakauppaan 1, 7 km ja merenrantaan reilut kilometri. Tervetuloa tutustumaan tähän hyväkuntoiseen, moderniin kotiin joka tarjoaa rauhallista asumista lähellä kaupungin palveluja!
Ett modernt hem i gott skick söker nya ägare
I omtyckta Halkokari, i ett relativt nytt och trivsamt bostadsområde längs en lugn återvändsgata, hittar du detta snygga och välskötta tvåvåningshus från 2015. Här bor du med utmärkt läge - knappa 3 km från centrum, 1, 7 km till närmaste matbutik och drygt en kilometer från havsstranden. Välkommen till ett modernt hem i gott skick som kombinerar stadens närhet med ett lugnt och familjevänligt boende!

Perustiedot
Sijainti: Hunajatie 13, 67300 Kokkola
Tyyppi: Omakotitalo Hartman Koti mallisto
Rakennusvuosi: 2015
Huoneistoselitelmä: Ak: k, oh, mh, wc, kph, s, apuk, terassi | Yk: 4 mh, tv-h, kph, khh, p
Asuinpinta-ala: 218 m2
Kokonaispinta-ala: 254 m2
Vapautuminen: Sopimuksen mukaan

Lisätiedot
Luokitus: Hyvä
Lämmitysjärjestelmä: Kaukolämpö
Lämmönjakotapa: Vesikiertoinen lattialämmitys
Kaukolämmön kulutus: 13,212 MWh (2025)
Vesihuollon kuvaus: Kunnan
Viemäri: Kunnan
Sähköliittymä siirtyy: Kyllä
Energiatodistus: B2018
Tontti: Vuokra
Vuokranantaja: Kokkolan kaupunki
Pinta-ala: 1512 m2
Muut rakennukset: Autotallirakennus

Tontti
Tontin omistus: Vuokra
Tontin vuokraaja: Kokkolan kaupunki
Tontin vuokra: noin 2000 €/vuosi
Kiinteistötunnus: 272-109-16-4-L1
Tontin koko: 1512 m2
Muut rakennukset: Lämmin autotallirakennus kahdelle autolle sekä varastotilaa, kerrosala 78 m2.
Muuta: Upotettu, lämmitettävä 20 m3 ulkoallas terassilla. Asfaltoitu ja laatoitettu piha. Aidattu takapiha.
Rakennusoikeutta jäljellä: 46 m2
egnahemshus
Honungsvägen 13, Karleby
Bottenvån: k, vr, arbetsrum, wc, bdr, bastu, hjälpkök, terrass | Övre vån: 4 sr, tv-r, bdr, klädvårdsr, balkong
Varm garage- och förrådsbyggnad
Runsaasti tilaa isommankin perheen tarpeisiin
Talon m2 tarjoavat runsaasti tilaa isommankin perheen tarpeisiin. Sisään tullessa saavutaan avaraan eteiseen, josta wc sijaitsee heti oikealla. Suoraan edessä löytyvät kylpyhuone, sauna sekä käytännöllinen kodinhoitohuone, josta on oma uloskäynti takapihalle. Vasemmalle avautuvat viihtyisät oleskelutilat - olohuone, ruokailutila ja keittiö muodostavat yhtenäisen ja valoisan kokonaisuuden. Lisäksi alakerrassa on työhuone, joka toimii tarvittaessa myös viidentenä makuuhuoneena. Yläkerrassa sijaitsee suuri aula/toinen olohuone, neljä tilavaa makuuhuonetta, kylpyhuone sekä todellinen arjen luksus: upea ja reilun kokoinen kodinhoitohuone!
Gott om plats även för den större familjen
Med sina generösa m2 erbjuder huset gott om plats även för den större familjen. När du stiger in möts du av en rymligt hall, där en toalett finns direkt till höger. Rakt fram ligger badrum, bastu samt ett praktiskt hjälpkök med egen utgång till bakgården. Till vänster öppnar de ljua och inbjudande sällskapsutrymmena upp sig - vardagsrum, matsal och kök i en harmonisk helhet samt ett arbetsrum som vid behov kan användas som husets femte sovrum. På övre våningen finns ett stort allrum/andra vardagsrum, fyra rymliga sovrum, badrum samt ett verkligt lyxigt stort klädvårdsrum som underlättar vardagen!

Grunduppgifter
Läge: Honungsvägen 13, 67300 Karleby
Typ: Egnahemshus av Hartman Hem -modell
Byggår: 2015
Rumsindelning: Bottenvån: k, vr, sr, wc, bdr, b, hjälpkök, terrass | Övre vån: 4 sr, tv-r, bdr, klädvård, balkong
Bostadsyta: 218 m2
Totalyta: 254 m2
Frigörs: Enligt överenskommelse

Tilläggsuppgifter
Kondition: God
Uppvärmning: Fjärrvärme
Distribuering: Vattenburen golvvärme
Fjärrvärmeförbrukning: 13,212 MWh (2025)
Vattenförsörjning: Kommunal
Viemäri: Kommunal
Elanslutning övergår: Ja
Energicertifikat: B2018

Tomt
Ägandeform: Arrende
Hyresvärd: Karleby stad
Tomtens hyra: ca 2000 €/år
Fastighetsbeteckning: 272-109-16-4-L1
Areal: 1512 m2
Övriga byggnader: Varm garagebyggnad för två bilar och förråd, våningsyta 78 m2
Övrigt: Uppvärmbar utomhuspool 20 m3 på terrassen. Asfalterad och stensatt gård, ingärdad bakgård.
Återstående byggrätt: 46 m2
sällskapsutrymmena på bottenvåningen
Alakerran oleskelutilat
Keittiö, ruokailutila ja olohuone | Kök, matplats och vardagsrum
Kiila - Koti isolla koolla
Seuraava teksti on Hartman Koti- esitteestä: " Suuret ikkunat, ilmavat tilaratkaisut ja yllättävät yksityiskohdat tekevät näistä taloista tyylikkyyttä arvostavien suosikkeja. Kiila on kiilannut tyylikkäämpien talojen joukkoon."
Kiila - ett hem för stora tankar
"Stora fönster, öppna utrymmeslösningar och överranskande detaljer gör dessa hus till favoriter för familjer som uppskattar stil." Texten är tagen ur Hartman Koti-broschyren för Kiila - husmodellen.

Varaava takka
Olohuonetta koristaa lämmittävä takka.

Mysig spis
Vardagsrummet pryds av en värmande spis.

Ruokailutila
Avarat oleskelutilat yhdessäoloon perheen ja ystävien kanssa.

Matsal
Generösa sociala ytor för umgänge med familj & vänner!

Tyylikäs & kestävä lattia
Koko alakerrassa on tyylikäs ja kestävä harmaanruskea laattalattia.

Snyggt & slitstarkt golv
Ett snyggt & slitstarkt klinkergolv i gråbrun nyans pryder hela nedre våningen.

Hyvin suunniteltu keittiö
Hyvin suunniteltu keittiö tarjouaa runsaasti sekä säilytys- että laskutilaa.

Välplanerat kök
Det välplanerade köket har gott om både förvaring och arbetsyta.
Tilat & materiaalit
PÄÄASIALLINEN RAK MATERIAALI: Puu
KATTO: Murrettu harjakatto, peltikate
KEITTIÖN KUVAUS: Jääkaappi/pakastin, astianpesukone, integroitu liesi ja mikro, keittiösaareke jossa induktioliesi.
APUKEITTIÖN KUVAUS: Ovi takapihalle. Kura-allas, pesuallas, säilytyskokonaisuus. Lattia laatta, seinät kaakeli.
WC:N KUVAUS: Peili- ja allaskaappi, korkea kaappi, wc, bidesuihku. Lattia laatta, seinät kaakeli.
KYLPYHUONEEN KUVAUS: Kattosuihku. Lattia laatta, seinät kaakeli
SAUNAN KUVAUS: Sähkökiuas. Lattia laatta, seinät saunapaneeli.
OLOHUONEEN/RUOKAILUTILAN KUVAUS: Varaava takka, terassiovi.
YLÄKERRAN KPH:N KUVAUS: Peili- ja allaskaappikokonaisuus, suihkukaappi, wc. Lattia laatta, seinät kaakeli.
KODINHOITOHUONEEN KUVAUS: Pesukoneliitäntä, säilytyskokonaisuus. Lattia laatta, seinät maalattu.
ALAKERRAN LATTIA: Laattalattia
Utrymmen & material
HUVUDSAKLIGT BYGGMATERIAL: Trä
TAKTYP: Plåtbeklätt sadeltak (tak med bruten övergång)
BESKRIVNING AV KÖK: Kylskåp/frys, diskmaskin, integrerad ugn och micro, köksö med induktionsspis.
BESKRIVNING AV HJÄLPKÖK: Dörr ut till bakgården, groventrédusch, diskho, förvaringsskåp. Golv klinkers, väggar kakel.
BESKRIVNING AV WC: Spegel- och lavoarskåp, högt skåp, wc, bidedusch. Golv klinkers, väggar kakel.
BESKRIVNING AV BADRUM: Takdusch. Golv klinkers, väggar kakel.
BESKRIVNING AV BASTU: El bastu-ugn. Golv klinkers, väggar bastupanel.
BESKRIVNING AV VARDAGSRUM/MATSAL: Ackumulerande spis, terrassdörr.
BESKRIVNING AV ÖVRE VÅNINGENS BADRUM: Spegel- och lavoar, förvaringsskåp, duschskåp, wc. Golv klinkers, väggar kakel.
BESKRIVNING AV KLÄDVÅRDSRUMMET: Tvättmaskinsanslutning, förvaringsskåp. Golv klinkers, väggar målade.
NEDRE VÅNINGENS GOLV: Klinkergolv










Hinta & kustannukset
Myyntihinta: 359 000 €
Muut kustannukset kaupan yhteydessä: Ostaja vastaa varainsiirtoverosta 3 % kauppahinnasta sekä vuokraoikeuden siirtämisen kustannuksista.
Pris & kostnader
Försäljningspris: 359 000 €
Övriga kostnader i samband med köpet: Köparen ansvarar för överlåtelseskatt 3 % av köpesumman samt kostnader för överföring av arrenderätten.




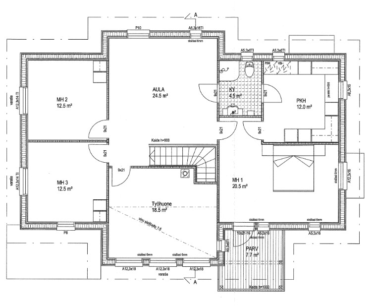
Stor övre våning
Poikkeuksellisen tilava yläkerta
Monikäyttöinen aula, 4 mh, kph ja khh | Aula, 4 sv, bdr och klädvårdsrum
Kylpyhuone ja kodinhoitohuone päämakuuhuoneen vieressä
Yläkerta muodostuu monikäyttöisestä aulasta, neljästä tilavasta makuuhuoneesta, kylpyhuoneesta sekä isosta kodinhoitohuoneesta.
Badrum och klädvårdsrum intill det ena sovrummet
Övre våningen består av en stor aula som passar utmärkt som ett andra vardagsrum, fyra sovrum, badrum samt ett stort klädvårdsrum. Sovrummen är alla väl tilltagna.

Yläkerran MH 1

Yläkerran MH 2

Yläkerran MH 3

Yläkerran MH 4
Yläkerrassa runsaasti valoa ja tilaa
Yläkerran makuuhuoneet ovat kaikki reilun kokoisia; kaksi pienempää ovat 12, 5 m2 ja suuremmat 18,5 m2 sekä 20, 5m2.
Ljust & rymligt även på övre våningen
Sovrummen på övre våningen är alla rymliga: de två mindre sovrummen är 12, 5 m2, och de större 18,5 respektive 20,5 m2.
förråd samt Garage för två bilar
Varastotila sekä autotalli kahdelle autolle
Tontti on rajattu näkösuojan tarjoavalla havuaidalla, ja takapiha rajoittuu pieneen metsäalueeseen.
Tomten ramas in av en insynsskyddande barrhäck, och bakgården gränsar till ett litet skogsområde.
Näyttävä ja toimiva unelmakoti
Tämä koti kutsuu viihtymään vuoden ympäri. Pihapiirissä on suuri terassi ja uima-allas, jotka tekevät kesäpäivistä erityisen nautinnollisia. Kokonaisuuden kruunaa lämmin kahden auton autotalli sekä runsaasti varastotilaa. Tervetuloa tutustumaan tähän näyttävään ja toimivaan unelmakotiin - tällaisia kokonaisuuksia on harvoin tarjolla!
Representativt och fungerande drömhem
Det här är ett hem som verkligen tar tillvara livets goda - både inne och ute! Den välplanerade tomten rymmer en stor terrass med pool, perfekt för sköna sommardagar tillsammans med familj och vänner. Dessutom finns ett varmt garage för två bilar samt gott om förrådsutrymme. Välkommen på visning till den här representativa helheten - liknande sällan till salu!



Hunajatie13
Yhteystiedot & esittelyt | Kontaktuppgifter & visningar
Annika Sandbacka | 050 5963 122 | info@averanda.fi
